Matrix

Matrix Engagement At Entrance Level

Visual Corridor

Matrix Relation To Platform

Platform Level

 
 

Matrix...

The city of Gilroy is entering a revival with the routing of the California High Speed Rail. this will create opportunities to reinvigorate the 19th Century urban heart of this small rural city. The Matrix has the potential to invigorate the economic situation in Gilroy as well as sponsor a substatial growth in population. With the arrival of the high speed train, the site will serve as a focal point for future development. This project requires that we understand the impact of such a project in a city like Gilroy. to take full advantage of the site, we have adopted the air rights above the track. Railroads dramatically use bridges to soar above obstacles. we have taken this concept and elevated our project within a bridge-like mega truss above the parallel rail lines below to free up the surrounding site for future redevelopment.

Design Team: Jaime Jung, Adan Rios

 
 

Entrance Level

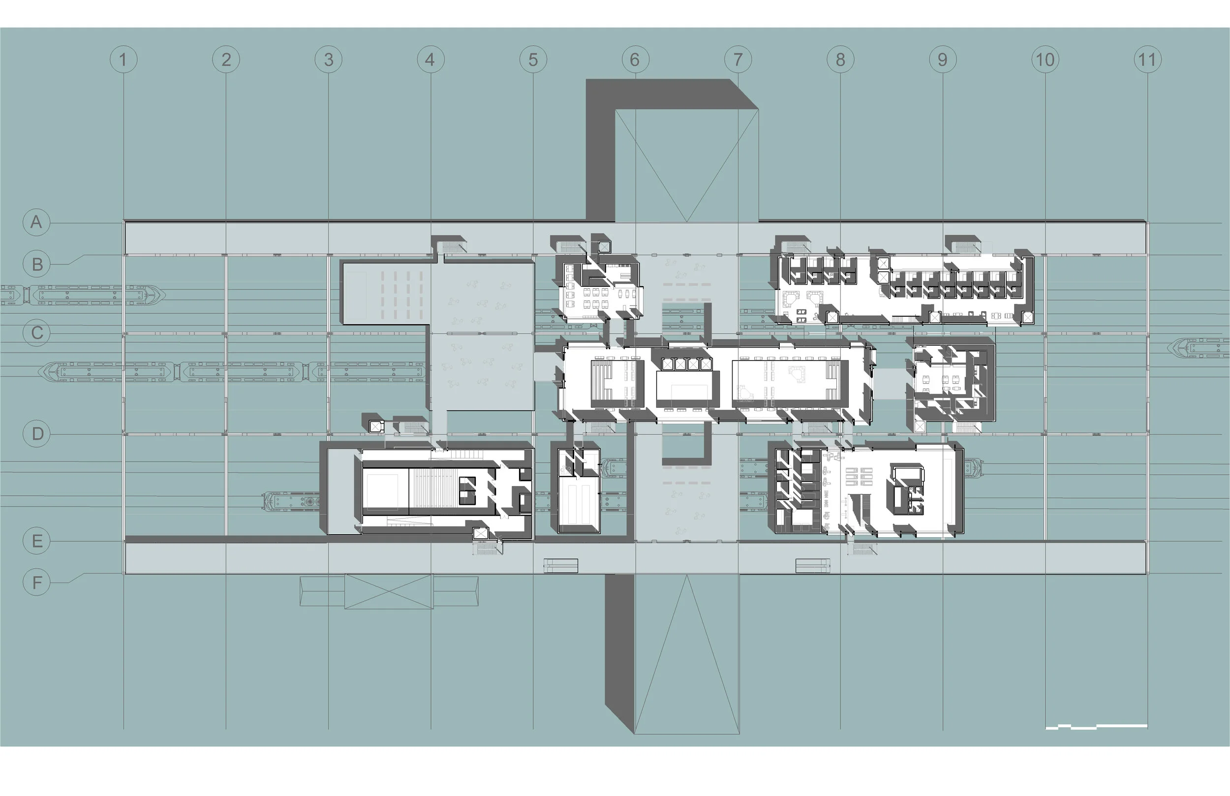
Concourse Level | First Floor

Concourse Level | Second Floor

1. Excavating Tunnel To Create Cross Circulation Between The City And The Train Station

1. Excavating Tunnel To Create Cross Circulation Between The City And The Train Station

2. Raising Above Tracks To Fulfill Transparency Within The City

2. Raising Above Tracks To Fulfill Transparency Within The City

3. Mega-Truss Structure to Elevate Program

3. Mega-Truss Structure to Elevate Program

4. Infill Program Within Structure And Creating A Range Of Programmatic Relationships

4. Infill Program Within Structure And Creating A Range Of Programmatic Relationships

5. Pin-wheel Relationship To Enhance To Inner Connection Within The Programs

5. Pin-wheel Relationship To Enhance To Inner Connection Within The Programs

6. Inset The Buildings To Create Visual Corridor And Vertical Ventilation Core

6. Inset The Buildings To Create Visual Corridor And Vertical Ventilation Core

7. Solar Panel Roof For Daylight And Energy Conservation

7. Solar Panel Roof For Daylight And Energy Conservation